In 2024 Peterhead Port Authority purchased the Mapco facility at Gerries Yard
This strategically located building is close to the fish market and will replace the units currently provided at Albert Street and Volum Street. We have now completed designs to split this into 6 modern fish processing units. It is expected that the project to complete these works will be awarded in summer 2025 and take around 9 months to complete. We are inviting interest in the units, which will be followed up with a draft lease for a minimum period of 4 years, with the tenant having a 4 year extension option.

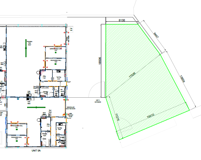
There are two units remaining at the southern end of the building.
Unit 5 – internal area 263sqm with a dedicated 181 sqm secure yard. Rent: £19,725 per annum.

Unit 5B – internal area 180sqm. Rent: £13,500 per annum.

There is an adjacent yard which is optionally available as a ground lease to go along with either of these two units. This is 403sqm and is priced at £2,914 per annum.
